|
||||||
| 住所 | 敷金 礼金 |
間取り 面積 |
タイプ 構造 |
入居時期 | 築年月 | 駐車場 |
|---|---|---|---|---|---|---|
| 宮崎市宮崎駅東 | 1ヶ月 1ヶ月 |
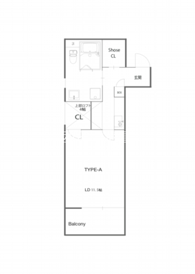
1K+ロフト 40.43m2 |
マンション 鉄筋コンクリート造 |
令和08年04月下旬 | 2016/02 | 空有 ¥8,800 |
宮崎駅まで徒歩圏内!オシャレさんにぴったりの外観、内観です♪
是非一度お部屋をご覧くださいませ!!
| 物件番号 | 15695 | ||
|---|---|---|---|
| 物件名 | AKH | 号室 | 401 |
| 地区 | 吉村町・青葉町・昭和町 | 住所 | 宮崎市宮崎駅東 |
| 建物構造 | 鉄筋コンクリート造 | タイプ | マンション |
| 階/階建 | 4階/6階建 | 向き | 南 |
| 賃料 | ¥61,000 | 共益費 |
¥3,000 |
| 駐車場料金 | ¥8,800 | 駐車場在否 | 空有 |
| 敷金 | 1ヶ月 | 礼金 | 1ヶ月 |
| 間取り | 1K+ロフト | 間取詳細 | 洋10 ロフト2.5 |
| 西暦築年数 | 2016/02 | 面積 | 40.43m2 |
| 契約期間 | 2年 | 火災保険 | 要加入 |
| バス停最寄施設 | 宮崎駅まで 徒歩12分 960m | 仲介手数料 | 1.1ヶ月 |
| 現況 | 空予定 | 引渡時期 | 令和08年04月下旬 |
| 学区 | 小学校区:宮崎市立江平小学校 中学校区:宮崎市立宮崎東中学校 |
||
| 特色 | バストイレ別、室内洗濯機置場、更新料無し、給湯シャワー、エアコン、洗面化粧台、収納、シャンプードレッサー、洋室、ウォシュレット、バルコニー、CATV、WIクローゼット、駐車場、お湯張りオートストップ、デザイナーズ&ハイグレード、システムキッチン、TVインターホン、追炊バス、オートロック、浴室乾燥機、2階以上 | ||
※掲載されている物件データが現状と異なる場合は現状を優先します
![]()
- 株式会社 西日本宅建
- TEL:0985-28-3344
- FAX:0985-28-3345
- >>関連の地域・地区から検索
- 物件一覧 -- 宮崎市東部 吉村町・青葉町・昭和町 -- 間取一覧 -- 写真一覧
- >>カテゴリから検索
- デザイナーズ物件





